>BUSINESS>도장설비
도장설비
Global Leader In INSUNG ENGINEERING
Total Solution For High Performance
(주)인성엔지니어링의 도장 설비 시스템을 소개 합니다.
전처리 설비란?
전처리 설비는 피도물에 도장 또는 피복을 입히기 전에 부착성을 좋게 하기 위하여 기름때 또는 먼지 등의 불순물을 제거하는 장치를 말한다.
도장처리의 첫 공정으로써 피도물의 방식성,내식성을 증가 시킬 수가 있다.
전처리 설비의 종류
- 철입자의 강력한 SPRAY를 이용한 SHOT BLAST M/C에 의한 전처리
- WATER SPRAY 또는 DIPPING을 이용한 수처리에 의한 전처리
전처리 설비 기본 공정
- 탕세(Hot Water Rinsing)
(55℃, 0.5~1min) - 탈지(Degreasing)
(55℃, 0.5~1min) - 수세(Rinse)
(0.5~1min)
- 표면조정(Surface Condition)
(0.5~1min) - 피막화성(Phosphate)
(45℃, 2~3min) - 수세(Rinse)
(0.5~1min) - 순수세(D.I Water Rinsing)
(0.5~1min)
전처리 설비 시공 사례
터키 & 현대 / 러시아 & 동힉산업 / 진천 & 보그워너
전처리 장치 외부
전처리 SPRAY
전처리 DIP TANK
전처리 SPRAY TANK
전착 설비란?
전착설비는 도장하기 어려운 굴곡진 부분과 전체적인 균일한 도막 두께 및 도착성을 얻을 수 있는 공정으로, 저농도로 희석된 전착도료를 탱크에 채워 전도성이 있는 피도물에 전류를 흘리는 방식 이다.
전착 설비의 종류
- 양이온(Cationic) 전착도장 - 피도물에 음극음,극판(예:도료)에 양극의 전기를 이용하는 방식
- 음이온(Anionic) 전착도장 - 피도물에 양극,극판(예:도료)에 음극의 전기를 이용하는 방식
전착설비 기본 공정
- 전착(Electro Deposition)
- UF # 1수세
- UF # 2수세
- UF # 3수세
- 순수세
전착 설비 시공 사례
터키 & 현대 / 러시아 & 동힉산업 / 진천 & 보그워너
전착도장 설비 내부 (Dipping)
전착도장 설비 내부 (Dipping)전착도장 설비 내부 (Dipping)
전착도장 설비 외부
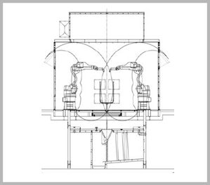
액체도장 설비란?
페인트 분진 및 먼지의 유입 방지, 이물질 불량 등을 제거하여 최고 품질을 추구하는 각정 제품의 마감질용 도장설비이다. 도장시 도료의 분무는 인체에 유해하여 인화나 폭발 등의 위험성이 있기 때문에 이를 방지하기 위하여 적절한 급/배기 장치설비가 필요하다
액체도장 설비의 종류
- 건식 도장 설비 - Spray된 도료 입자를 Fiter(Paoer 또는 부직포) 등을 이용하여 배기 장치에 의한 집진방식
- 습식 도장설비 - Spray된 도료 입자를 Water Mist를 이용하여 배기 장치에 의한 집진 방식
습식 도장 설비
액체도장 설비 시공 사례
체코 & 현대 / 러시아 & 모비스
Water Screen Type Booth 내부
VIP Clean Room
Spray Booth 내부
Circular Type Booth 내부
Recirculation Air Handing Unit
Clean Room 외부
액체도장 설비 시공 사례
맥시코 & 모비스
액체도장 설비 시공 사례
베트남 & 인탑스
건조설비란?
도장 공정 중 최종 공정으로 가장 중요한 부분이며 비교적 장시간 소요되는 공정이다.
피도물에 도색된 도료를 경화시키는 공정으로 품질의 안정성과 생산 향상 및 에너지 절감, 작업시 쾌적한 분위기를 유지하기 위해선 좋은 건조로를 설치해야 하며
도료의 특성상 현장 여건에 따라서 열원과 열교환 방식, 온도, 시간 등을 검토하여 설계 되어야 한다.
건조 설비의 종류
- 직접식 열품 순환 로 - 등유, 가스등의 연소 공기를 공기와 혼합하여 열품순환 Fan에 의해 흡입되어,에어필터,열풍덕트 등을 통하여 연소로 내로 공급하고 물건에 열을 가하는 방식,
- 간접식 열품 순환 로 - 연소실에 가열된 매체 또는 연소가스를 열 교환기 내의 엥로 핀 튜브로 보내,에어로핀 튜브 외부에 의하여 가열 된 공기를 건조로 내로 보내는 방식
- 적외선로 - 적외선로의 열원에는 적외선전구, 니크롬히이터 등이 사용되고, 방사된 적외선이 피 가열물을 조사하고, 가열에 필요한 열이 된다.
- AIR FIN 사용한 전기 로 - 전기를 열원으로하여 AIR FIN에서 발생하는 열을 순환 FAN을 사용하여 순환시키는 방식.
- STEAM을 사용한 STEAM로
건조 설비 시공 사례
터키 & 현대
WAX Oven 내부
WAX Oven 내부
Booth & Oven 내부
Baking Oven 외부
U.V COATING & CURING SYSTEM
UV 설비는 주로 플라스틱 제품의 도장,코팅,건조 등에 사용하는 설비로 최근에 급속하게 퍼지는 휴대폰 CASE ,화장품용기 등의 표면처리를 완전 자동화 함으로써 피도물의 양산화 및 균일화에 부응할 수 있다.
U.V 설비의 구성
- COATING BOOT 구성에 따라 - ONE BOOTH TYPE, TWO BOOTH TYPE,THREE BOOTH TYPE
- U.V 구성에 따라 - ONE ZONE TYPE, TWO ZONE TYPE, THREE ZONE TYPE
- BOOTH & U.V ZONE 은 피도물의 조건에 따라 적절히 구성할 수 있다.
U.V 공정 예시
- LOADING
- I.R OVEN → ION BOOTH(1) → COATING BOOTH(1) →
I.R OVEN(2) → COATING BOOTH(2) → I.R OVEN(3) →
ION BOOTH(2) → COATING BOOTH(3) → I.R OVEN(4)
- COOLING
ROOM - U.V ROOM
- COOLING
- UN LOADING
U.V 라인 설비 시공 사례
베트남 & 삼성전자(SEV/Mobile phone)
U.V 라인 설비 시공 사례
베트남 & 삼성전자(SEV/Mobile phone)
분체도장 설비란?
분체도장설비는 고형분으로 된 분말상의 도료를 사용,정전기를 이용하는 공정으로 내식성,접착성내구성과 부식 방지에 탁월한 고품질의 제품을 얻을 수 있다. 무엇보다 도료를 회수하여 사용 할 수 있어 도료절감의 효과가 있으며, 자동 및 수동 도장이 가능하다.
액체도장설비와 차이점
분체 전용의 정전도장기 도장실, 도료회수장치를 필요로 한다는 점이며, 표면 처리설비나, 가열건조로, 컨베이어 등은 액체 도장 설비를 그대로 사용 할 수 있다.
분체도장설비의 특징
- 공해문제 및 용제에 의한 중독이나 화재의 위험성이 없다.
- 분말타입이므로 위생적이고, 저장 및 수송이 유리하다.
- 표면이 매끄러우며 접촉이 강해 잘 벗겨지지 않는다.
- 도장작업이 간단하여 작업공정 단축이 가능하며, 효율적이다.
- 1회에 40μm ~ 50μm 이상의 다양한 도막을 얻을 수 있다.
- 도료변경 시 도장부스의 청소시간이 용제도장 대비 많은 시간 소요
- 전용도장기 필요





